pROJECTS
Rear Extension and Garage Conversion in Hove
The dated and cold conservatory at the rear of the house has been knocked down and replaced by an extension with a skylight and large sliding door creating an open plan area at the rear overlooking. Also, cold garage space has been turned into fully integrated guest...
Rear extension in Hove
We are currently undertaking a project in Hove. We will post more pictures soon
Southwick: Rear extension/Internal Refurbishment
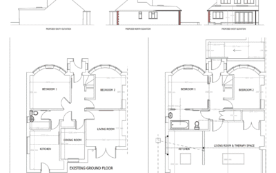
T.LE Contracting has won the tender to build a rear extension to a bungalow in Portslade. The existing small kitchen and dining/living room were not suitable for a young growing family.With numerous challenges such as bad weather in December/January along with the...
Walsington Road, Hove: Rear extension/Loft Conversion
We were appointed to carry out building works in Hove that included Roof alterations incorporatinga rear dormer with the erection of a single-storey rear extension and associated alterations. This projectinvolved numerous time and logistical challenges, especially...
hangleton: Rear extension
This is decent size rear extension to a semi-detached bungalow in Hove. The main purpose was to extend the living room and to get rid of the cold and dated conservatory. Along with a beautiful bifold door leading onto the terrace overlooking south downs with sea view...
Quick Contact
What We Do
Extension / Lofts:
Extending, renovating and refurbishing property can make perfect sense, adding to the value of your property and enjoying the benefit of increased usable space has got to be a good idea both financially in the long and short term.
Converting your loft has many benefits. The average size of a loft is comparable to the size of a small studio apartment and this allows for many different options in deciding what to use this space for. Whether is it extra bedroom, bathroom, study or even convert the lofts into separate dwellings and if planning permission is obtained an external stairs can create a self-contained apartment with privacy from the main property an ideal project for generating a secondary income from for example student accommodation.
Garage Conversions, Porches
For a relatively quick alteration to your property to add some additional need space a garage conversion could be the ideal choice. With most cars built today being too large for most garages on house built decades ago the garage normally becomes a storage room but has much more to offer with a little time and effort. Playrooms for the kids, a home office or enlarging a kitchen or creating a dining room are all achievable possibilities.
Kitchen and Bathroom fit out
One of the most common undertakings any property owner will take is to update or modernise their Bathroom or Kitchen. This work can involve simply updating the existing area with brand new modern fixtures and fittings to adapting existing space or extending the existing spaces to accommodate your individual requirements.





